全部相册(40)
实景图(8)
区位图(1)
效果图(11)
样板间(19)
楼栋图(1)
下一页
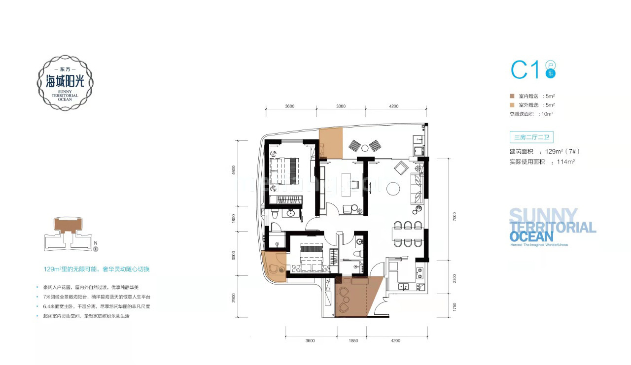
海域阳光位于海口市西海岸片区,占地面积118亩,这是一个将传统四合院,融入高层建筑的滨海住区。110米空中泳池,汇聚意大利、德国、荷兰等品牌精装的样板房即为交房标准。海岛文化主题园林,天然矿物温泉。项目精选云石,加工为奢华大堂主题墙;定制2.5米/秒品牌电梯,每部10万元轿箱内饰,配备电梯智能预系统;意大利进口马赛克,铺就滨海无边界涌池;德国ROTO、新风系统、电子指纹密码门锁、彩色可视对讲系统、密码锁信报箱等。
楼盘名称: 东方海域阳光
楼盘别名: 海域阳光·天玺
物业类型: 住宅
项目特色: 海景房 温泉房 品牌地产
售楼电话: 400-0407-266
建面均价: 30000元/平方米
所属区域: 海口
交房时间: 预计2020年12月底二期9#交房
最新开盘: 2019年10月二期9#开盘
产权年限: 70年
装修情况: 毛坯
开发商: 海南阳光美基投资开发有限公司
物业公司: 海南海域阳光物业服务有限公司
物业费: 2.8元平米/月
占地面积: 78666平米
建筑面积: 385520平米
总栋数: 10栋
规划户数: 1700户
停车位: 2250个
容积率: 3.50
绿化率: 47.42%
地铁交通: 有28路、35路、37路、40路、50路、57等多路公车经过,国际会展中心站下车。
预售证号: [2017]海房预字(0106)号
楼盘地址: 海口市西海岸国际会展中心对面
责任编辑: 邓喜文
房贷计算器
开始计算
您的账单
等额本金计算所得每月还款为平均值,数据仅供参考;






设置楼盘动态提醒,加推开盘早知道


房贷计算器
您的账单
