全部相册(19)
实景图(1)
区位图(3)
规划图(2)
效果图(9)
配套图(2)
证件(2)
下一页
广电航天海晟是为文昌广电重点的项目。中国广播电视网络有限公司(简称:中国广电)。中国广播电视网络有限公司,负责全国范围有线电视网络的相关业务,开展三网融合业务。
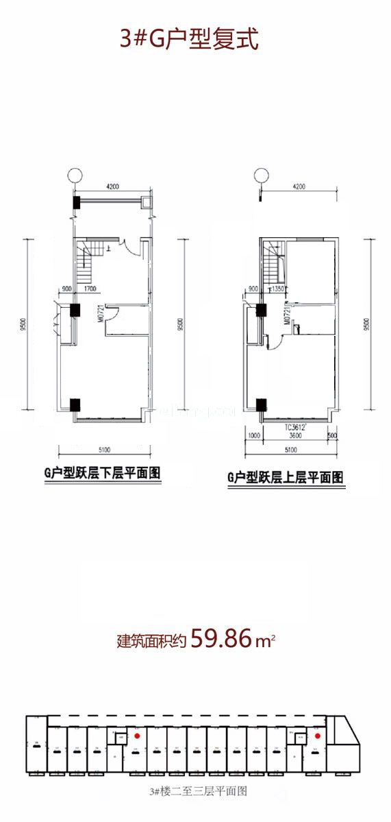
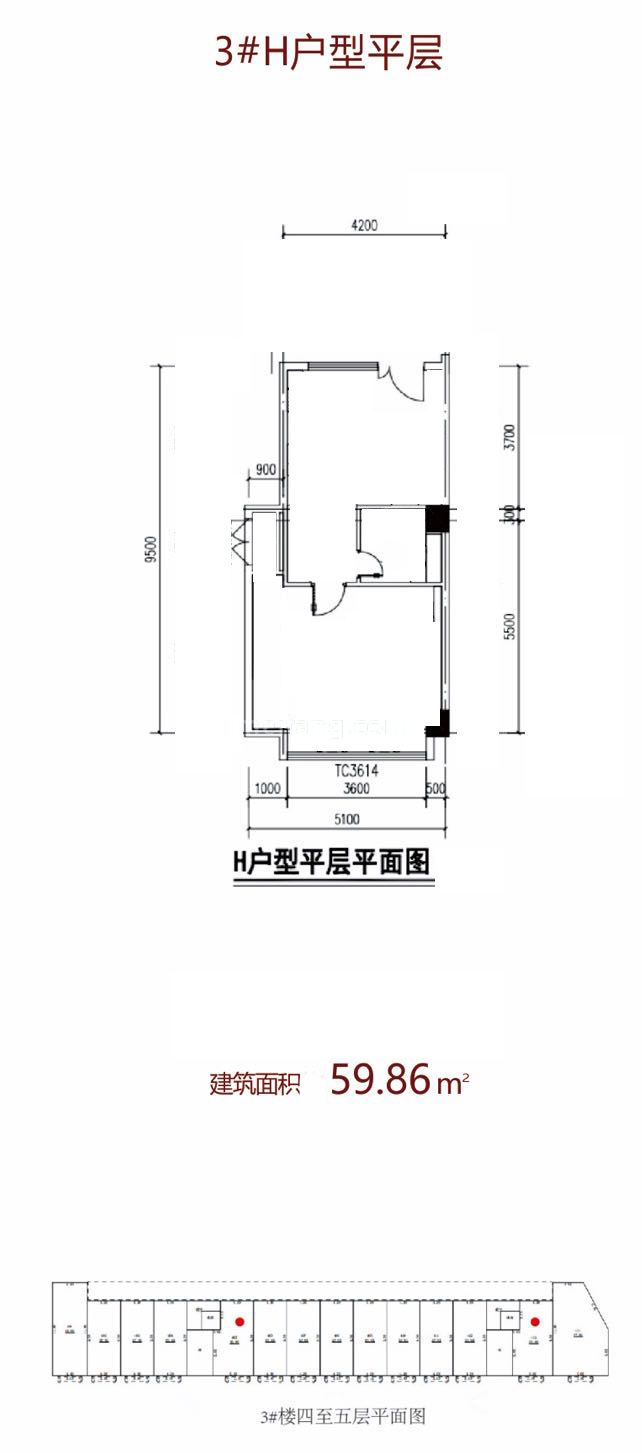
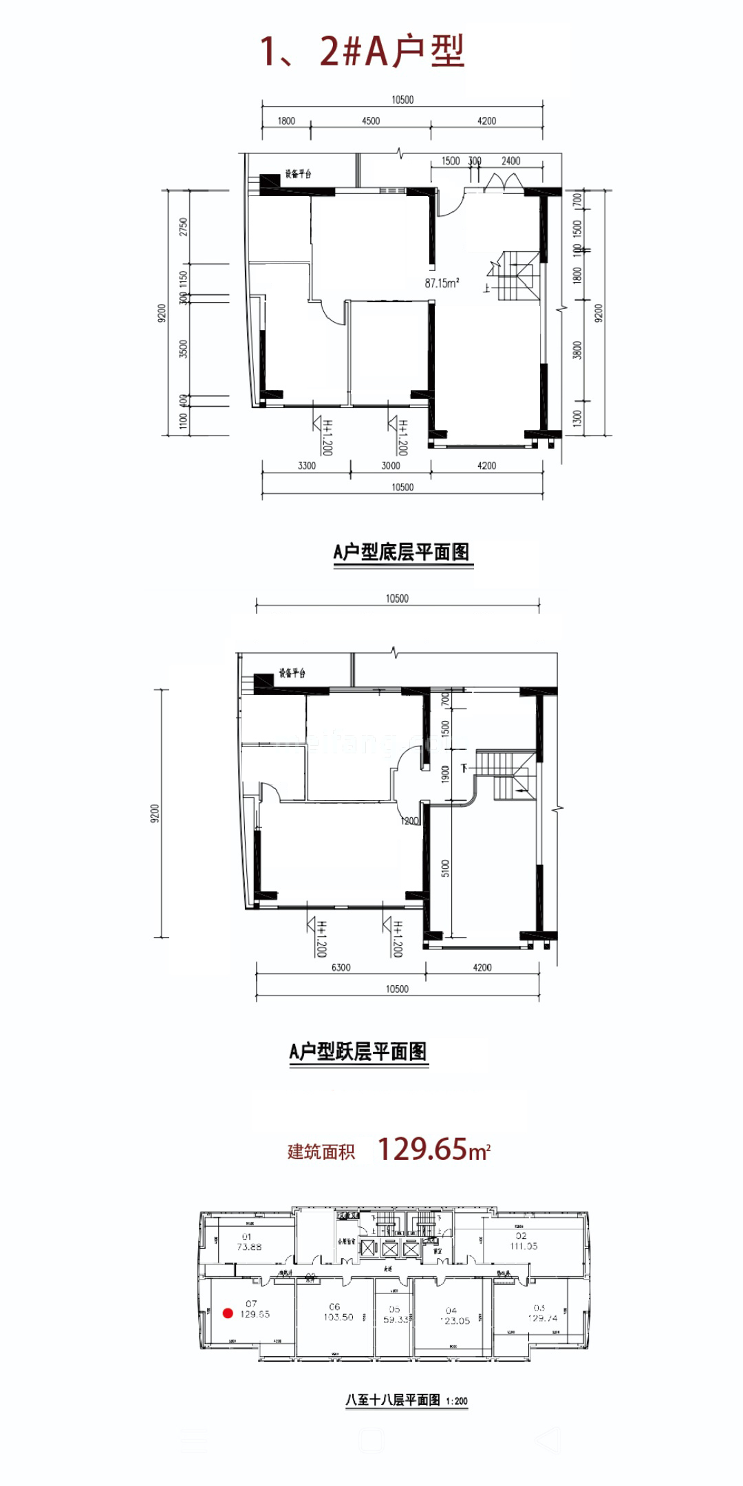
广电航天海晟项目生活配套业态主要满足本地区的基本生活需求,引入特色超市、影院、零售商店、餐饮等进驻,填补航天城的商业配套服务空白。从城市发展的层面来看,项目既是文昌重要配套服务中心,也是为航天城片区提供配套服务。
从产业支撑的层面来看,项目所在的航天新城发展生态型航空航天新技术产业,将打造吸引青少年特色文化娱乐场所。
广电航天海晟项目位于航天大道南侧距离美兰机场54公里、文昌高铁站7公里、文昌市政府2.7公里、文昌市政务中心4公里、航天主题乐园(航天发射基地)18公里、铜鼓岭4A风景区26公里、东郊椰林8公里、椰子大观园2公里、大型超市百合财富广场2.7公里、清澜农贸市场2.6公里、高隆湾海鲜市场4.2公里,海陆空立体交通,通达海文高速、东环高铁、清澜大桥、海文大桥、滨海旅游快速路等,构建四通八达的路全岛;美兰机场、博鳌机场直径联线。
楼盘名称: 广电航天海晟
物业类型: 商办
项目特色: 小户型 商用办公
售楼电话: 400-0407-266
建面均价: 6980元/平方米
所属区域: 文昌
交房时间: 2022年10月份
产权年限: 40年
装修情况: 毛坯/精装
开发商: 海南泰澄中盛置业有限公司
物业公司: 海南康顺物业管理有限公司
物业费: 1.8-2.5元平米/月
占地面积: 208000平米
建筑面积: 450000平米
总栋数: 4栋
停车位: 地上30,地下274个
供电类型: 商电
供水类型: 商水
燃气: 无燃气
容积率: 3.0
绿化率: 25%
地铁交通: 距离美兰机场54公里、文昌高铁站7公里、文昌市政府2.7公里、文昌市政务中心4公里、航天主题乐园(航天发射基地)18公里、铜鼓岭4A风景区26公里、东郊椰林8公里。
预售证号: 【2021】文房预字(029)号
楼盘地址: 海南省文昌市航天大道清华附中斜对面
责任编辑: 邓喜文
房贷计算器
开始计算
您的账单
等额本金计算所得每月还款为平均值,数据仅供参考;







设置楼盘动态提醒,加推开盘早知道


房贷计算器
您的账单
