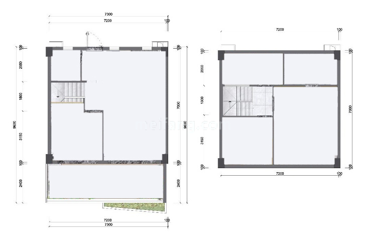
商业办公 四楼云墅 星空 建筑面积64㎡,实得面积120㎡,
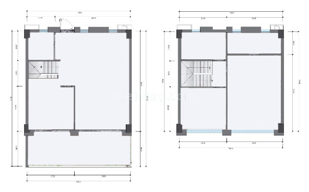
商业办公 三楼雅宿 建筑面积64㎡,实得面积120㎡
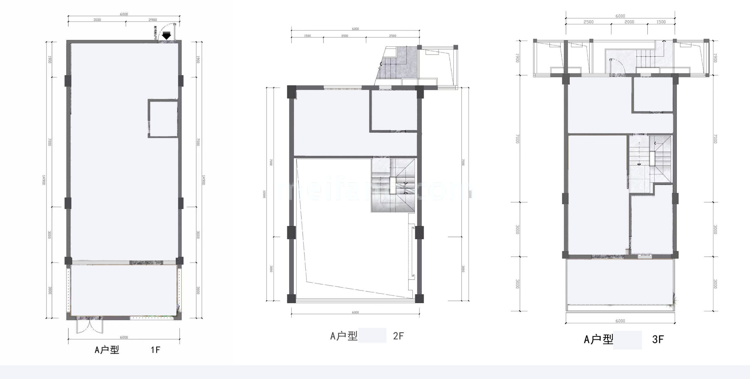
商业办公 一楼下叠院景 建筑面积78㎡,实得面积200㎡
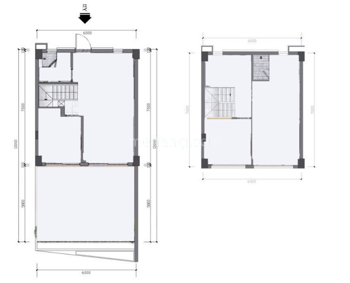
商业办公 二楼时光 建筑面积55㎡,实得面积110㎡