海南
全国
海南
北海
首页
新房
新房
房价走势
二手房
房源
小区
直播
阿伟直播
炳哥直播
资讯
房产资讯
政策法规
楼盘导购
购房指南
地图找房
自贸港专题
0898-88756746
新房
全部
新房
导购
文章
小区
二手房
首页
>
楼盘
>
美兰楼盘
>
江东椰风海韵二期
> 楼盘相册
返回楼盘首页
楼盘相册
楼盘动态
楼盘户型图
视频看房
楼盘详情
江东椰风海韵二期
全部
区位图(
1
)
效果图(
2
)
楼层平面图(
3
)
楼栋图(
1
)
区位图
效果图
效果图
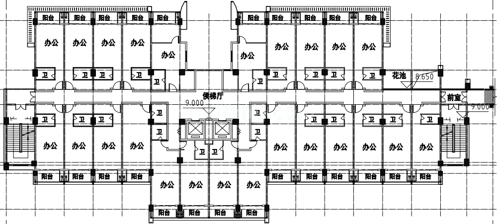
1#C栋平层图
1#B栋平层图
1#D栋平层图
楼栋图
区位图
效果图
效果图
1#C栋平层图
1#B栋平层图
1#D栋平层图
楼栋图